Trilocale in vendita

Milano, Via Val Sabbia - Comasina
€ 189.000
3 locali 3 locali
67 Mq 67 Mq
1 bagno 1 bagno

Trilocale in vendita

Milano, Via Val Sabbia - Comasina

Descrizione annuncio

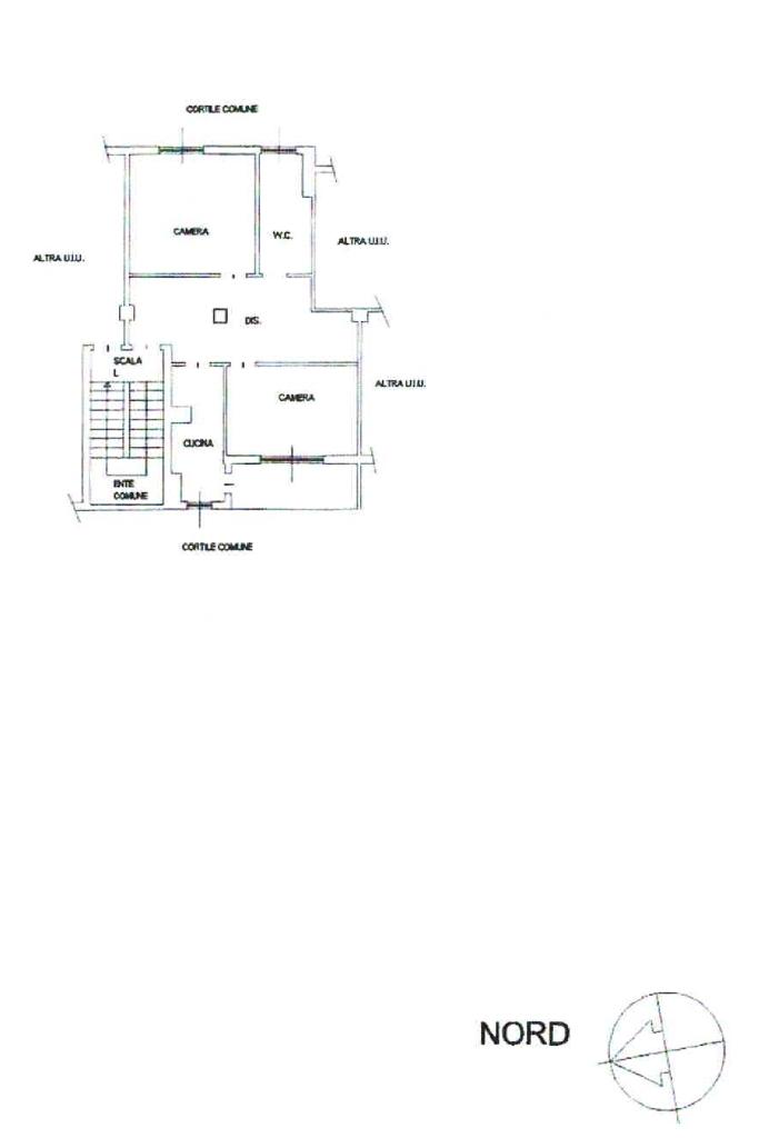
In uno degli angoli più verdi del quartiere, a pochi passi dal capolinea della M3 Comasina e da tutti i servizi vari, proponiamo appartamento di tre locali sito al terzo piano senza ascensore, in stabile di quattro totali.

L'immobile è composto da ingresso in soggiorno, cucinotto separato e camera da letto con balcone in comune;
proseguendo nel disimpegno, è presente un’ampia camera matrimoniale e un bagno finestrato con vasca.

L'abitazione risulta luminosa e silenziosa grazie alla doppia esposizione a est-ovest con affaccio sull'interno condominiale.

Completa la proprietà una cantina di pertinenza ubicata al piano seminterrato di circa 7 mq.

Mostra tutto

Nelle vicinanze

Trasporto pubblico Trasporto pubblico
Comasina
Comasina
320 m
Affori FN
Affori FN
840 m
Milano Affori
Milano Affori
820 m
Milano Bruzzano
Milano Bruzzano
1,3 Km
Comasina M3
Comasina M3
350 m
Ricariche auto elettriche Ricariche auto elettriche
Centro Commerciale Metropoli
1,1 Km
Autoparco Fiorenza Deposito Giudìziario
1,2 Km
Cormano Giussani | EnelX
1,9 Km
Cormano Leopardi | EnelX
1,9 Km
Cormano Battisti | EnelX
2,3 Km
Scuole Scuole
Scuole
130 m
Istituto di Istruzione Superiore V. F. Pareto
440 m
Istituto Comprensivo Statale Sorelle Agazzi
650 m
Scuola Media Statale "Umberto Saba"
950 m
Asilo Infantile Affori
1,2 Km
Farmacia Farmacia
Farmacia Fratelli Ragni
540 m
Lloyds Farmacia - farmacia 21
1,1 Km
Farmacia
1,1 Km
Farmacia Comunale
1,2 Km
Farmacia comunale 1
1,5 Km
Ospedali Ospedali
Ospedale Niguarda Cà Granda
2,8 Km
ospedale Luigi Sacco
2,9 Km
Supermercati Supermercati
Sigma
220 m
EuroSpin
640 m
Lidl
980 m
Punto Simply
1,1 Km
My Auchan
1,1 Km
Negozi Negozi
Negozi
190 m
Esso Shop
960 m
Panificio Grassi
1,0 Km
Piazza Italia
1,1 Km
Guess
1,1 Km
Bar Bar
Bar Cialdini
1,5 Km
Bar Zanoli
1,5 Km
The Babylon
1,5 Km
Nero 17
1,6 Km
Bar Caffe
1,6 Km
Ristoranti Ristoranti
Trattoria Procopio
620 m
I due pini
950 m
Piscinin Ristorante
980 m
Piccolo mare
1,0 Km
da Mario & Lory
1,0 Km
Mostra tutto

Caratteristiche

Rif.:
61123620
Piano:
3 di 4 (Piano alto)
Balconi:
1
Camere da letto:
2
Arredamento:
Parziale
Condizionamento:
Assente
Mostra tutto
Prezzo Prezzo
€ 189.000
Rata mutuo Rata mutuo
€ 871 / mese
Spese annue Spese annue
€ 2.400
Proponi il tuo prezzoProponi il tuo prezzo

Classe Energetica

E
E
E
E
E
E
E
E
E
EP invernale del fabbricato:
EP estiva del fabbricato:
Anno di costruzione:
1957
Riscaldamento:
Centralizzato
Tipo impianto:
A radiatori
Tipo alimentazione:
Metano

Ti interessa visionare l'immobile?

Fissa un appuntamento  Fissa un appuntamento

Richiedi informazioni

* Questi campi sono obbligatori

Calcola il tuo mutuo

Semplice e senza impegno
Anticipo

( % )
Mutuo

( % )

pochi semplici passi

inserisci i tuoi dati
Questionario completato
Grazie per aver richiesto un appuntamento senza impegno con un nostro Consulente del Credito e Assicurativo.

Hai inserito correttamente tutti i dati necessari e a breve riceverai una e-mail con un link da convalidare per inviare i tuoi dati.
Affiliato
Immobiliare Comasina Sas
Via Alessandro Litta Modignani, 5 20161 Milano (MI)

Il nostro staff


  • Alessandro Zefilippo
    Responsabile
Via Alessandro Litta Modignani, 5 20161 Milano (MI)
Zona: Bovisasca-Comasina
Mostra su mappa
Orari: dal lunedì al venerdì 09:30 - 12:30; 15:00 - 19:30; sabato 09:30 - 12:30; 14:30 - 17.00
Affiliato
Immobiliare Comasina Sas
Via Alessandro Litta Modignani, 5 20161 Milano (MI)

2025 Tecnocasa Franchising S.p.A. - P. IVA 08365160152 - Via Monte Bianco 60/A 20089 Rozzano (MI). Ogni agenzia ha un proprio titolare ed è autonoma. Privacy policy | Policy utilizzo | Cookie policy