Bilocale in vendita

Milano, Piazza Gasparri - Comasina
€ 185.000
Prezzo aggiornato
2 locali 2 locali
60 Mq 60 Mq
1 bagno 1 bagno

Bilocale in vendita

Milano, Piazza Gasparri - Comasina

Descrizione annuncio

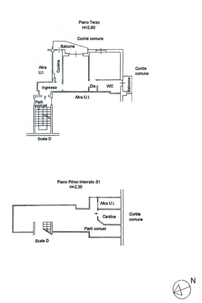
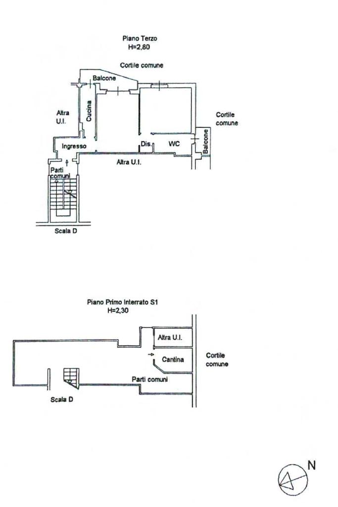
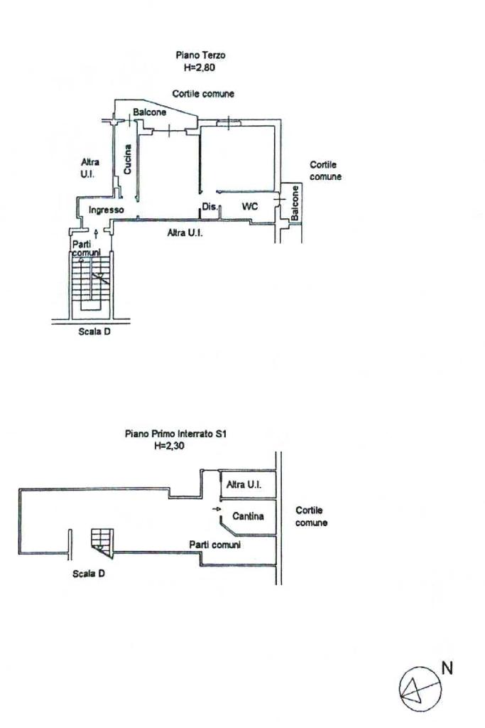
In uno degli angoli più verdi del quartiere, a pochi passi dal capolinea della M3 Comasina, dalla stazione di Affori FN e dai vari servizi, proponiamo appartamento di due locali sito al terzo piano senza ascensore, in stabile di quattro totali.

L'immobile è composto da ingresso in disimpegno, cucinotto separato e soggiorno con balcone in comune;
proseguendo nel disimpegno, troviamo la zona notte, dove è presente un’ampia camera matrimoniale e un bagno rivestito in mosaico, munito di cabina doccia multifunzione con affaccio su un secondo balcone.

L'abitazione risulta luminosa e silenziosa grazie alla doppia esposizione a sud-est con affaccio sull'interno condominiale.

Riscaldamento centralizzato a pavimento, impianto di climatizzazione dual split a pompe di calore, infissi con vetro a doppia camera e tapparelle motorizzate.

Completa la proprietà una cantina di pertinenza ubicata al piano seminterrato.

Mostra tutto

Nelle vicinanze

Trasporto pubblico Trasporto pubblico
Comasina
Comasina
260 m
Affori FN
Affori FN
550 m
Milano Affori
Milano Affori
540 m
Milano Bruzzano
Milano Bruzzano
1,1 Km
Comasina M3
Comasina M3
330 m
Ricariche auto elettriche Ricariche auto elettriche
Centro Commerciale Metropoli
1,3 Km
Autoparco Fiorenza Deposito Giudìziario
1,4 Km
Cormano Giussani | EnelX
1,8 Km
Cormano Leopardi | EnelX
1,9 Km
BeCharge Municipio di Bresso
2,2 Km
Scuole Scuole
Scuole
150 m
Istituto Comprensivo Statale Sorelle Agazzi
370 m
Istituto di Istruzione Superiore V. F. Pareto
430 m
Scuola Media Statale "Umberto Saba"
610 m
Asilo Infantile Affori
960 m
Farmacia Farmacia
Farmacia Fratelli Ragni
250 m
Lloyds Farmacia - farmacia 21
770 m
Farmacia Comunale
890 m
Farmacia
930 m
Farmacia Affori
1,3 Km
Ospedali Ospedali
Ospedale Niguarda Cà Granda
2,5 Km
Poliambulatorio Cesare Pozzo
2,9 Km
Supermercati Supermercati
Sigma
540 m
Punto Simply
740 m
My Auchan
770 m
EuroSpin
840 m
Lidl
1,2 Km
Negozi Negozi
Negozi
290 m
Panificio Grassi
740 m
OVS Kids
810 m
Panificio Fornai
910 m
EffeCorta Milano
970 m
Bar Bar
Bar Cialdini
1,2 Km
Bar Zanoli
1,3 Km
Roxy Bar
1,4 Km
The Babylon
1,4 Km
Bar
1,5 Km
Ristoranti Ristoranti
I due pini
650 m
Piscinin Ristorante
650 m
Piccolo mare
690 m
da Mario & Lory
760 m
Affori Ristorante
850 m
Mostra tutto

Caratteristiche

Rif.:
61114781
Piano:
3 di 4 (Piano medio)
Balconi:
2
Camere da letto:
1
Arredamento:
Parziale
Condizionamento:
Autonomo
Mostra tutto
Prezzo Prezzo
€ 185.000
Rata mutuo Rata mutuo
€ 873 / mese
Spese annue Spese annue
€ 2.400
Proponi il tuo prezzoProponi il tuo prezzo

Classe Energetica

E
E
E
E
E
E
E
E
E
EP invernale del fabbricato:
EP estiva del fabbricato:
Anno di costruzione:
1957
Riscaldamento:
Centralizzato
Tipo impianto:
A pavimento
Tipo alimentazione:
Metano

Prezzo ridotto di €1 (6%%)

Ti interessa visionare l'immobile?

Fissa un appuntamento  Fissa un appuntamento

Richiedi informazioni

Clicca su Leggi per aprire l'informativa
* Questi campi sono obbligatori

Calcola il tuo mutuo

Semplice e senza impegno
Anticipo

( % )
Mutuo

( % )

pochi semplici passi

inserisci i tuoi dati
Questionario completato
Grazie per aver richiesto un appuntamento senza impegno con un nostro Consulente del Credito e Assicurativo.

Hai inserito correttamente tutti i dati necessari e a breve riceverai una e-mail con un link da convalidare per inviare i tuoi dati.
Affiliato
Immobiliare Comasina Sas
Via Alessandro Litta Modignani, 5 20161 Milano (MI)

Il nostro staff


  • Alessandro Zefilippo
    Responsabile
Via Alessandro Litta Modignani, 5 20161 Milano (MI)
Zona: Bovisasca-Comasina
Mostra su mappa
Orari: dal lunedì al venerdì 09:30 - 12:30; 15:00 - 19:30; sabato 09:30 - 12:30; 14:30 - 17.00
Affiliato
Immobiliare Comasina Sas
Via Alessandro Litta Modignani, 5 20161 Milano (MI)

2026 Tecnocasa Franchising S.p.A. - P. IVA 08365160152 - Via Monte Bianco 60/A 20089 Rozzano (MI). Ogni agenzia ha un proprio titolare ed è autonoma. Privacy policy | Policy utilizzo | Cookie policy