Trilocale in affitto

Milano, Via Teano - Comasina
€ 1.400 / mese
Prezzo aggiornato
3 locali 3 locali
62 Mq 62 Mq
1 bagno 1 bagno

Trilocale in affitto

Milano, Via Teano - Comasina

Descrizione annuncio

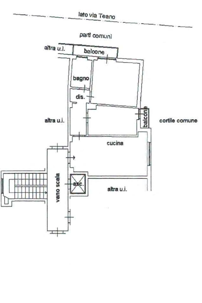
In uno degli angoli più verdi del quartiere, a soli 50 metri dal capolinea della M3 Comasina e ben fornito da tutti i servizi, proponiamo in locazione appartamento di tre locali sito al sesto ed ultimo piano con ascensore in stabile signorile.

L'immobile è composto da ingresso in soggiorno con cucina a vista; proseguendo nel disimpegno, troviamo la zona notte, dove sono presenti due camere da letto, entrambe munite di balcone e un bagno finestrato con doccia.

L'abitazione risulta luminosa e silenziosa grazie alla doppia esposizione a sud-ovest con affaccio sull'interno condominiale.

Frutto di una recente ristrutturazione, infissi in doppio vetro, impianto di climatizzazione trial split a pompa di calore, videocitofono, zanzariere.

L’immobile è disponibile da subito e verrà consegnato completamente arredato.

Canone libero, tre mensilità di deposito cauzionale, massime referenze.

Mostra tutto

Nelle vicinanze

Trasporto pubblico Trasporto pubblico
Comasina
Comasina
100 m
Affori FN
Affori FN
890 m
Milano Affori
Milano Affori
880 m
Milano Bruzzano
Milano Bruzzano
970 m
Comasina M3
Comasina M3
50 m
Ricariche auto elettriche Ricariche auto elettriche
Centro Commerciale Metropoli
1,4 Km
Autoparco Fiorenza Deposito Giudìziario
1,5 Km
Cormano Giussani | EnelX
1,6 Km
Cormano Leopardi | EnelX
1,6 Km
Cormano Battisti | EnelX
2,0 Km
Scuole Scuole
Scuole
190 m
Istituto di Istruzione Superiore V. F. Pareto
680 m
Istituto Comprensivo Statale Sorelle Agazzi
710 m
Scuola Media Statale "Umberto Saba"
810 m
Scuola elementare Cesare Cantù
1,2 Km
Farmacia Farmacia
Farmacia Fratelli Ragni
590 m
Farmacia
1,0 Km
Farmacia Comunale
1,0 Km
Lloyds Farmacia - farmacia 21
1,1 Km
Farmacia Affori
1,6 Km
Ospedali Ospedali
Ospedale Niguarda Cà Granda
2,8 Km
Supermercati Supermercati
Sigma
340 m
Punto Simply
870 m
EuroSpin
940 m
My Auchan
1,1 Km
Coop
1,2 Km
Negozi Negozi
Negozi
430 m
Panificio Grassi
770 m
Panificio Fornai
1,1 Km
Esso Shop
1,1 Km
OVS Kids
1,1 Km
Bar Bar
Bar
1,5 Km
Bar Cialdini
1,6 Km
Bar Zanoli
1,6 Km
Nero 17
1,7 Km
The Babylon
1,8 Km
Ristoranti Ristoranti
Trattoria Procopio
680 m
da Mario & Lory
820 m
Piscinin Ristorante
960 m
I due pini
980 m
Piccolo mare
1,0 Km
Mostra tutto

Caratteristiche

Rif.:
61186890
Piano:
6 di 6 con ascensore (ultimo Piano)
Balconi:
2
Camere da letto:
2
Arredamento:
Completo
Condizionamento:
Autonomo
Mostra tutto
Prezzo Prezzo
€ 1.400 / mese
Spese annue Spese annue
€ 2.400

Classe Energetica

D
D
D
D
D
D
D
D
D
EP invernale del fabbricato:
EP estiva del fabbricato:
Anno di costruzione:
1962
Riscaldamento:
Centralizzato
Tipo impianto:
A radiatori
Tipo alimentazione:
Metano

Prezzo ridotto di €1 (7%%)

Ti interessa visionare l'immobile?

Fissa un appuntamento  Fissa un appuntamento

Richiedi informazioni

Clicca su Leggi per aprire l'informativa
* Questi campi sono obbligatori
Affiliato
Immobiliare Comasina Sas
Via Alessandro Litta Modignani, 5 20161 Milano (MI)

Il nostro staff


  • Alessio Catizzone
    Collaboratore

  • Francesca Romana Padolecchia
    Collaboratrice

  • Pamela Patruno
    Coordinatrice

  • Alessandro Zefilippo
    Responsabile
Via Alessandro Litta Modignani, 5 20161 Milano (MI)
Zona: Bovisasca-Comasina
Mostra su mappa
Orari: dal lunedì al venerdì 09:30 - 12:30; 15:00 - 19:30; sabato 09:30 - 12:30; 14:30 - 17.00
Affiliato
Immobiliare Comasina Sas
Via Alessandro Litta Modignani, 5 20161 Milano (MI)

2026 Tecnocasa Franchising S.p.A. - P. IVA 08365160152 - Via Monte Bianco 60/A 20089 Rozzano (MI). Ogni agenzia ha un proprio titolare ed è autonoma. Privacy policy | Policy utilizzo | Cookie policy